- Architekt:
- Hansjakob, Gottfried
- Mitarbeit / Kooperation:
- Miller, Wolfgang; Ast, Manfred; Hansjakob, Anton; Miller, Bruno; Kitscher, Artur
- Projekt:
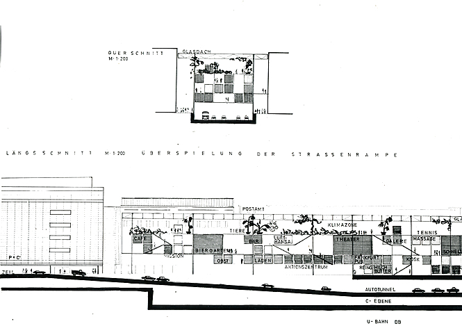
- Zeil - Fußgängerbereich
- Ort:
- Frankfurt am Main
- Jahr Beginn:
- 1970
- Jahr Abschluss:
- 1970
- Typus:
- Straßen; Plätze
- Signatur:
- han_g-87-1004
- Objekt:
- Überspielung der Straßenrampe (Längsschnitt; Querschnitt)
- Datum Objekt:
- 1970
- Fotograf / Modellbau / Zeichner:
- Hansjakob Landschaftsarchitekten
- Maßstab:
- 1:200
- Gattung:
- Plan
- Technik:
- Fotografie
- Material:
- Fotopapier
- Breite:
- 23,3 cm
- Höhe:
- 16,4 cm
- alte Signatur:
- F. Nr.: 72; han_g-53-2
- URL:
- http://mediatum.ub.tum.de?id=1619675
- Lizenz:
